阿久和西 建築条件無し売地

土地

NEW

おすすめ

特徴

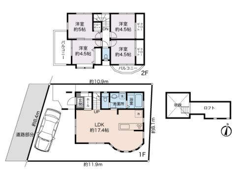
建築条件ありません  ご希望のハウスメーカーで理想のマイホームを実現ください 建物参考プラン(4LDK・勾配天井・ロフト付き)あります

  • 所在地

    神奈川県横浜市瀬谷区阿久和西2丁目

  • 交通

    相模鉄道本線「三ツ境」 バス6分「谷戸阿久和」バス停徒歩4分
    相模鉄道本線「希望ケ丘」 駅徒歩23分

  • 敷地面積

    114.36㎡(34.59坪)公簿

  • 地目

    宅地

ポイント
ライフインフォメーション
周辺地図
物件概要
ローンシミュレーション

お問い合わせ店舗: いずみ野店

0120-240-367

物件番号

SRE15986

いずみ野店

営業時間:10:00~18:00
※状況により変更する場合があります。詳細は店舗へご連絡ください。
定休日:毎週水曜日

◇相鉄グループの不動産事業を担う相鉄不動産販売は、「快適な暮らしをサポートするスペシャリスト」として、相鉄沿線をはじめ神奈川県下にネットワークをもつ総合不動産会社です。
その中でも『いずみ野店』は泉区・戸塚区・藤沢市を中心にサービスを提供しております。
◇『いずみ野店』は地域に精通したスタッフが、お客様のご要望にご満足いただけるお手伝いを約束いたします。
是非、相鉄グループの実績と信頼・安心感をお客様自身でご実感ください。
◇ 相鉄いずみ野線いずみ野駅の目の前、相鉄ライフいずみ野1Fで広く明るい落ち着いた雰囲気の店舗です。キッズコーナーもございますのでお子様連れでも安心です。
営業時間 10:00~18:00(水曜定休日)でお客様のご来店をお待ち申し上げております。
◇お車でお越しの際は、相鉄ライフ駐車場をご利用ください。

© SOTETSU REAL ESTATE SALES Co.,Ltd.
PAGE
TOP